< Back to Projects

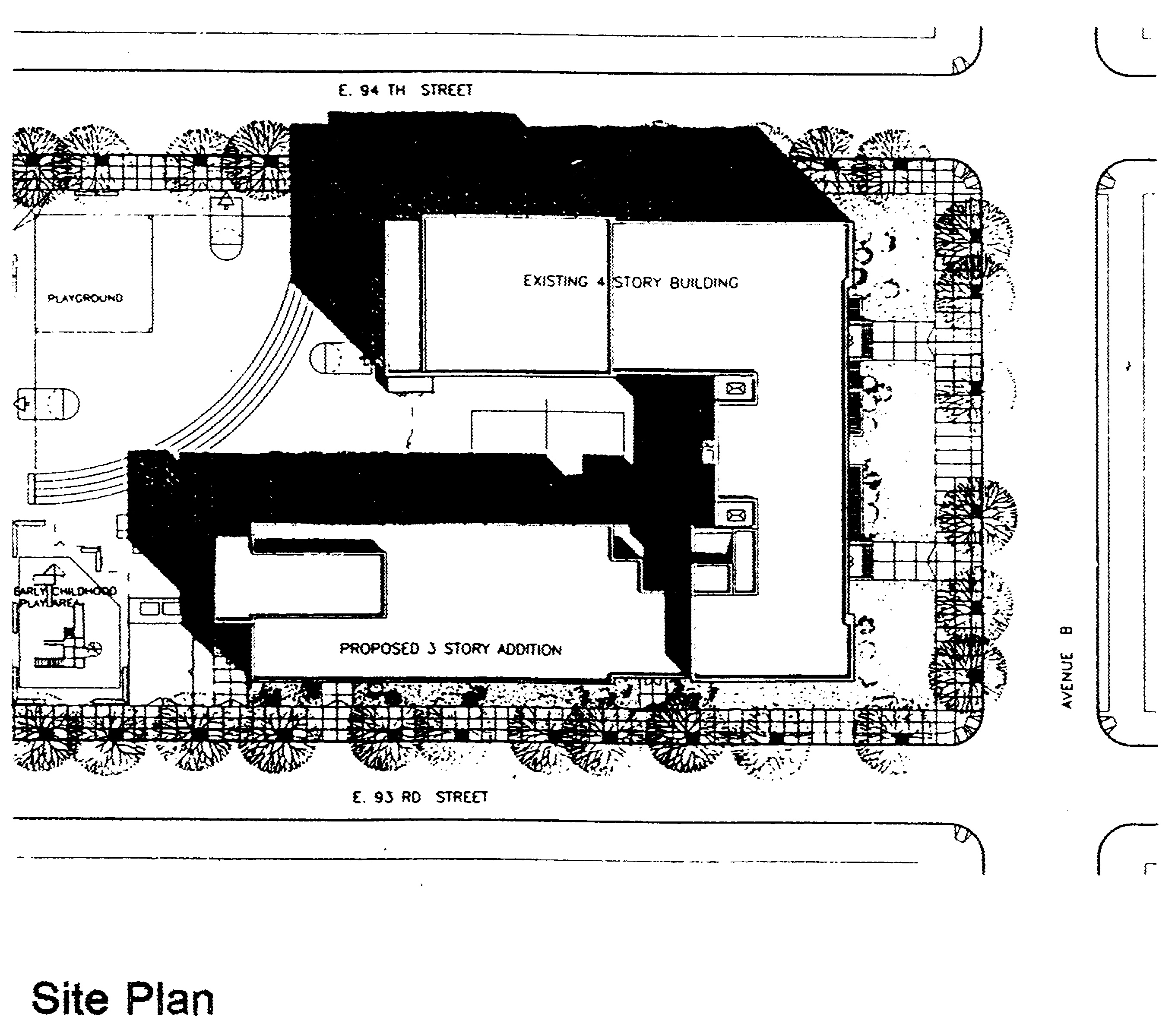
P.S. 233 Renovation and Addition

Elementary school renovation and addition

Client: NYC School Construction Authority
Responsibility: Project Manager, CA Phase
Location: Brooklyn, NY
Building Type: Educational
Cost: $9,000,000
Status: Completed

Architect of Record: Robert Traynham Coles, Architect, PC

admin