< Back to Projects

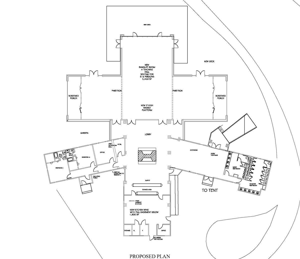
Buddhist Retreat and Teaching Center II

Flexible banquet hall/cafeteria for 100-200 with commercial kitchen and lecture hall for 500.

Client: Private
Responsibility: Project Architect
Location: Albany County, N.Y.
Building Type: Conference Center
Area: 11,000 sq. ft.
Cost: $2,500,000
Status: Schematic Design
Website: Ecologica Design applied to wastewater treatment - Ecomachines

Architect of Record: Spectra Engineering, Architecture and Surveying, P.C.

admin